
Luxusotthonok az Aranyparton a Balatontól 100 méterre! - Sió
Luxusotthonok az Aranyparton a Balatontól 100 méterre, zárt lakóparkban!A 6861
m2-es, az aranyparti szabadstrandtól 100 méternyire elhelyezkedő telken 16 db
lakóház kerül megépítésre. A telek összesen 8 részre került megosztásra, az így
kapott 8 telken pedig egyenként 2 db lakóház épül, saját bejárattal, elkerített
437 m2-es saját kertrésszel.A házak külleme modern, egyedi építészeti megoldások
jellemzik. A letiszult, mégis modern, elegáns otthonokat leendő tulajdonosaik
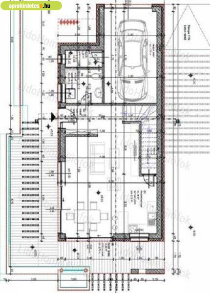
kulcsrakészen vehetik majd birtokba a feltüntetett áron.A kétszintes házak (150
m2) elosztása:Alsó szint:- egy légterű nappali és konyha- mellékhelyiség-
garázs- fedett terasz találhatóEmelet:- 4 szoba2 fürdő + WCKözös használatú
kültéri medence (4 x 12 m), szauna, jacuzzi szolgálja a tulajdonosok
kényelmét.Az épületek a modern energetikai elvásároknak megfelelően kerülnek
kivitelezésre, többek között 10 cm grafitos homlokzati hőszigeteléssel,GREE
Hőszivattyús hútő-fűtő fan coil rendszerrel, mely helyiségenként külön
vezérelhető (és H-tarifáról üzemeltethető), kiegészítésként elektromos
padlófűtéssel és törölköző szárítóval, wifiről vezérelhető Ariston HMV tároló
200 literes elektromos bojlerrel, valamint 76 mm profilvastagságú aluminium
külső nyílászárókkal, 3 rétegű üvegezéssel, elektromos alumínium redőnyökkel,
szúnyoghálóval szerelve.Prémium minőségű Grohe és Geberit szaniterek és
burkolatok kerülnek beépítésre a házakban, melyek napelem, riasztó, kaputelefon
előkészítést is kapnak.A kivitelező több korábbi nagyobb referenciával is
rendelkezik, ahol szintén a minőségre és a vásárlói elégedettségre törekedve
adta át ingatlanait, problémamentesen, a beépítésre kerülő anyagok
kiválasztásánál is törekszik a vásárlókkal való együttműködésre, ez a fajta
bizalom a jelenlegi piacon elengedhetetlen.Amennyiben egy luxusotthont, vagy
akár nyaralót keres Siófok Aranypartján, ezt ne hagyja ki, keressen
bizalommal!Lido Home - Ingatlanok egy életen át!
m2-es, az aranyparti szabadstrandtól 100 méternyire elhelyezkedő telken 16 db
lakóház kerül megépítésre. A telek összesen 8 részre került megosztásra, az így
kapott 8 telken pedig egyenként 2 db lakóház épül, saját bejárattal, elkerített
437 m2-es saját kertrésszel.A házak külleme modern, egyedi építészeti megoldások
jellemzik. A letiszult, mégis modern, elegáns otthonokat leendő tulajdonosaik
kulcsrakészen vehetik majd birtokba a feltüntetett áron.A kétszintes házak (150
m2) elosztása:Alsó szint:- egy légterű nappali és konyha- mellékhelyiség-
garázs- fedett terasz találhatóEmelet:- 4 szoba2 fürdő + WCKözös használatú
kültéri medence (4 x 12 m), szauna, jacuzzi szolgálja a tulajdonosok
kényelmét.Az épületek a modern energetikai elvásároknak megfelelően kerülnek
kivitelezésre, többek között 10 cm grafitos homlokzati hőszigeteléssel,GREE
Hőszivattyús hútő-fűtő fan coil rendszerrel, mely helyiségenként külön
vezérelhető (és H-tarifáról üzemeltethető), kiegészítésként elektromos
padlófűtéssel és törölköző szárítóval, wifiről vezérelhető Ariston HMV tároló
200 literes elektromos bojlerrel, valamint 76 mm profilvastagságú aluminium
külső nyílászárókkal, 3 rétegű üvegezéssel, elektromos alumínium redőnyökkel,
szúnyoghálóval szerelve.Prémium minőségű Grohe és Geberit szaniterek és
burkolatok kerülnek beépítésre a házakban, melyek napelem, riasztó, kaputelefon
előkészítést is kapnak.A kivitelező több korábbi nagyobb referenciával is
rendelkezik, ahol szintén a minőségre és a vásárlói elégedettségre törekedve
adta át ingatlanait, problémamentesen, a beépítésre kerülő anyagok
kiválasztásánál is törekszik a vásárlókkal való együttműködésre, ez a fajta
bizalom a jelenlegi piacon elengedhetetlen.Amennyiben egy luxusotthont, vagy
akár nyaralót keres Siófok Aranypartján, ezt ne hagyja ki, keressen
bizalommal!Lido Home - Ingatlanok egy életen át!
Részletek...
Adatlap
| Ár: | 230.000.000 Ft |
| Település: | Siófok |
| A hirdető: | Ingatlanirodáktól |
| Értékesítés típusa: | Eladó |
| Telek nagysága (m2) : | 437 |
| Épület hasznos területe (m2) : | 149.00 |
| Szobák száma: | 5 |
| Feladás dátuma: | 2026.04.24 |
| Eddig megtekintették 55 alkalommal | |
A hirdető adatai
Kapcsolat a hirdetővel...
Eladó nyaralók + egyéb ingatlanok rovaton belül a(z) "Luxusotthonok az Aranyparton a Balatontól 100 méterre! - Sió" című hirdetést látja. (fent)









