
Új építésű belső két szintes 186nm-es ház fedett 2 férőhelye
Jóváhagyott építési engedéllyel rendelkező új építésű tésű napfényes 186nm-es
házrész 1058nm-es telken a Barát pataknál zöld övezetben 400 méterre a Budai
úttól!Budakalászon, kiváló közlekedés mellett nappali + 3,5 szobás belső 2
szintes házrész, saját használatú kerttel és 2 férőhelyes fedett garázzsal
ELADÓ!Az ingatlan Budakalász közkedvelt részén épül, jelenleg alapozással
előkészített állapotú, mely szerződéskötéstől megegyezés szerinti ütemezéssel
készül és költözhető!Az ingatlan két házrészből áll, melyek teljesen
elkülönítettek, intimitása teljesen biztosított a gondos tervezésnek és
kivitelezésnek köszönhetően: - a földszinten a telek szinteltolásának
köszönhetően nincsen a két házrésznek közös falszakasza- az emeleten pedig dupla
falszerkezettel kialakított részen találkoznak, melyeknek két oldalán nincsenek
szomszédos lakóhelyiségek kialakítva.Ügyvéd által ellenjegyzett használati
megállapodással rendelkezik, hitelezhető!A nettó 186 nm-es lakótérben, közel 37
nm-es nappali-konyha-étkező, továbbá 3 hálószoba és 1 félszoba, 2 fürdőszoba -
melyből 1 mellékhelyiséggel, 1 külön mellékhelyiséggel kialakított -, illetve 1
további külön mellékhelyiség, háztartási helyiség, gardrób-közlekedő valamint
összesen 10 nm-es fedett terasz található.Műszaki paraméterek:- falak: Horizont
(A-74/2014) acélváz teherhordófalak, Rigips gipszkarton válaszfalak Isover
Akustó hangszigeteléssel.- nyílászárók: 3 rétegű üvegezéssel fehér műanyag
ablakkerettel, rejtett külső redőnytok, motoros redőny csatlakozással.-
burkolatok: tetszőlegesen választható, 5.000 Ft/nm alapárral kalkulálva.-
szaniterek: tetszőlegesen választható, alapfelszereltség szerint Grohe
csaptelepek, Ravak akril kád, zuhanytálca, Laufen wc és mosdó.- hőszivattyú,
padlófűtés, mennyezeti hűtő-fűtő rendszer, hőcserélő levegőztetőrendszer, klíma
csőelőkészítés- AA energiaosztály- napelem telepítésre kompatibilis tető-
Telekom 5G lefedettségTeljes közműves telek, mely egyelőre kavicsos földúton
megközelíthető, viszont az útfejlesztési hozzájárulás már megfizetésre került,
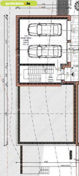
így idővel burkolt út várható.Gépkocsi tárolás: A lakáshoz 1db fedett 42,5 nm-es
garázs & tároló tartozik, mely a házzal egyidejűleg megvásárolandó! Ára:
13.200.000Ft.Környék, ellátottság:A környék kiválóan ellátott, bevásárlási
lehetőségek, posta, gyógyszertár, pékség, bölcsőde, óvoda, játszótér, patak part
séta távolságon belül nagyon gyorsan megközelíthető! Aldi, Auchan, OBI 7 perc
autóval!Tömegközlekedési megközelítése hibátlan! A H5 HÉV megálló 5 perc séta
távolság, csak 450m!Az ingatlan előre egyeztetett időpontban megtekinthetők.Ha
bármilyen kérdésük van, hívjanak bármikor bizalommal!
házrész 1058nm-es telken a Barát pataknál zöld övezetben 400 méterre a Budai
úttól!Budakalászon, kiváló közlekedés mellett nappali + 3,5 szobás belső 2
szintes házrész, saját használatú kerttel és 2 férőhelyes fedett garázzsal
ELADÓ!Az ingatlan Budakalász közkedvelt részén épül, jelenleg alapozással
előkészített állapotú, mely szerződéskötéstől megegyezés szerinti ütemezéssel
készül és költözhető!Az ingatlan két házrészből áll, melyek teljesen
elkülönítettek, intimitása teljesen biztosított a gondos tervezésnek és
kivitelezésnek köszönhetően: - a földszinten a telek szinteltolásának
köszönhetően nincsen a két házrésznek közös falszakasza- az emeleten pedig dupla
falszerkezettel kialakított részen találkoznak, melyeknek két oldalán nincsenek
szomszédos lakóhelyiségek kialakítva.Ügyvéd által ellenjegyzett használati
megállapodással rendelkezik, hitelezhető!A nettó 186 nm-es lakótérben, közel 37
nm-es nappali-konyha-étkező, továbbá 3 hálószoba és 1 félszoba, 2 fürdőszoba -
melyből 1 mellékhelyiséggel, 1 külön mellékhelyiséggel kialakított -, illetve 1
további külön mellékhelyiség, háztartási helyiség, gardrób-közlekedő valamint
összesen 10 nm-es fedett terasz található.Műszaki paraméterek:- falak: Horizont
(A-74/2014) acélváz teherhordófalak, Rigips gipszkarton válaszfalak Isover
Akustó hangszigeteléssel.- nyílászárók: 3 rétegű üvegezéssel fehér műanyag
ablakkerettel, rejtett külső redőnytok, motoros redőny csatlakozással.-
burkolatok: tetszőlegesen választható, 5.000 Ft/nm alapárral kalkulálva.-
szaniterek: tetszőlegesen választható, alapfelszereltség szerint Grohe
csaptelepek, Ravak akril kád, zuhanytálca, Laufen wc és mosdó.- hőszivattyú,
padlófűtés, mennyezeti hűtő-fűtő rendszer, hőcserélő levegőztetőrendszer, klíma
csőelőkészítés- AA energiaosztály- napelem telepítésre kompatibilis tető-
Telekom 5G lefedettségTeljes közműves telek, mely egyelőre kavicsos földúton
megközelíthető, viszont az útfejlesztési hozzájárulás már megfizetésre került,
így idővel burkolt út várható.Gépkocsi tárolás: A lakáshoz 1db fedett 42,5 nm-es
garázs & tároló tartozik, mely a házzal egyidejűleg megvásárolandó! Ára:
13.200.000Ft.Környék, ellátottság:A környék kiválóan ellátott, bevásárlási
lehetőségek, posta, gyógyszertár, pékség, bölcsőde, óvoda, játszótér, patak part
séta távolságon belül nagyon gyorsan megközelíthető! Aldi, Auchan, OBI 7 perc
autóval!Tömegközlekedési megközelítése hibátlan! A H5 HÉV megálló 5 perc séta
távolság, csak 450m!Az ingatlan előre egyeztetett időpontban megtekinthetők.Ha
bármilyen kérdésük van, hívjanak bármikor bizalommal!
Részletek...
Adatlap
| Ár: | 224.800.000 Ft |
| Település: | Budakalász |
| A hirdető: | Ingatlanirodáktól |
| Értékesítés típusa: | Eladó |
| Használtság: | Új építésű |
| Telek nagysága (m2) : | 1058 |
| Épület hasznos területe (m2) : | 186.00 |
| Szobák száma: | 4 |
| Félszobák száma: | 1 |
| Feladás dátuma: | 2026.04.05 |
| Eddig megtekintették 36 alkalommal | |
A hirdető adatai
Kapcsolat a hirdetővel...
Eladó házak rovaton belül a(z) "Új építésű belső két szintes 186nm-es ház fedett 2 férőhelye" című hirdetést látja. (fent)








